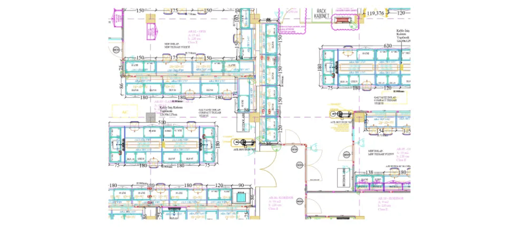
Projelerimizi 2D ve 3D çizimler ile destekliyoruz. Böylece yeni
laboratuvarınızın net bir resmini 3D olarak bir ön izleme ile görebiliyorsunuz.
Laboratuvarlar, yüksek verimlilik ve güvenlik standartlarını karşılaması
gereken özel çalışma alanlarıdır.
İyi tasarlanmış bir laboratuvar sadece estetik değil aynı zamanda ergonomik ve dayanıklı olmalıdır.
Bunların yanı sıra operasyonel verimliliği arttıran esneklikte ve verimli depolama alanlarına sahip güvenli ortamlar olmalıdır.